Projects menu
Projects menu
Expertise menu
Expertise menu













Progettazione funzionale Metro Riyadh
CREW, in Joint Venture con Oneworks, sono i consulenti dello studio IDOM per la progettazione funzionale delle stazioni della Linea 3 della Metropolitana di Riyadh. Il consorzio è guidato da Salini-Impregilo.
La Linea 3 si estende per 41,58 km, partendo da ovest (vicino alla Jeddah Expressway) e terminando a est (vicino al campo della Guardia Nazionale di Khashm El Aam), con un totale di 22 stazioni, suddivise in quattro tipologie diverse: 2 stazioni iconiche (Downtown Station e Western Station), 7 stazioni interrate, 3 stazioni in superficie, 1 stazione di trasferimento e 9 stazioni sopra-elevate.
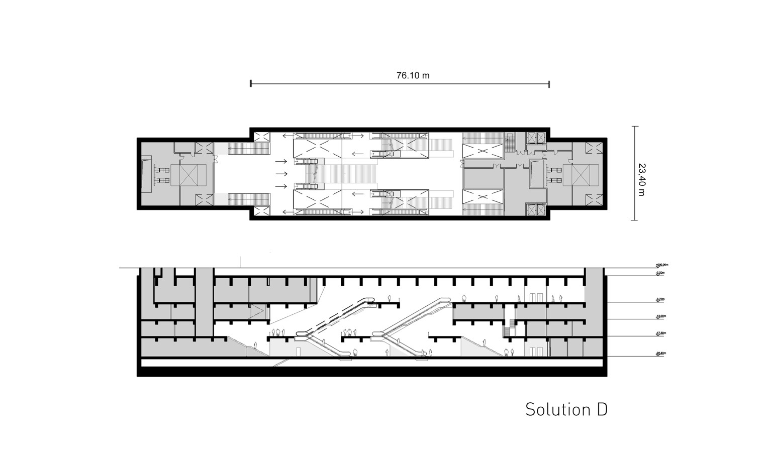
La progettazione delle stazioni si è concentrata sulla valutazione e definizione dei vari componenti, al fine di garantire che le stazioni svolgano le loro funzioni in modo corretto ed efficace, in conformità con i requisiti di progettazione forniti.
In riferimento alle operazioni della stazione, la progettazione funzionale analizza i diversi processi e circostanze che si verificheranno al suo interno, come la gestione del trasporto e del flusso dei passeggeri, i servizi di manutenzione e riparazione, la gestione delle emergenze.
Il processo di progettazione è stato orientato a sviluppare, per ciascuna tipologia di stazione, soluzioni comuni per problemi funzionali ricorrenti; per massimizzare l'efficacia dello sforzo progettuale, è stato sviluppato un prototipo per ciascuna tipologia di stazione, al fine di delinearne il layout funzionale e le dimensioni fisiche.
Other projects

Progettazione funzionale Metro Riyadh
